Floor Plan

*Plan may show available options & upgrades.

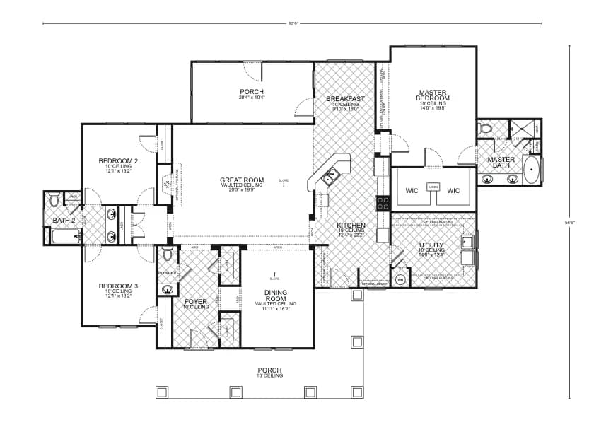
Brazos - Custom Home Floor Plan

Step into the grandeur of this meticulously designed floor plan, a perfect blend of elegance and functionality that beckons those aspiring to create their custom dream home. The alluring front porch opens to a refined foyer, leading you into the heart of the home: a stately great room with a vaulted ceiling that exudes an airy and luxurious ambiance.

Adjacent to the great room is a sophisticated dining room with a vaulted ceiling, providing a grand setting for dinner parties and family gatherings. The seamless transition to the kitchen ensures that hosting is a breeze. The kitchen itself is a chef’s delight, complete with modern amenities and a layout that encourages culinary creativity.

Nestled for privacy, the master suite is a sanctuary of comfort, featuring a 10-foot ceiling and ample space for a restful retreat. The suite includes a lavish master bath with dual vanities, a soaking tub, a separate shower, and dual walk-in closets, offering a spa-like experience at home.

On the opposite side of the house, two additional bedrooms each boast 10-foot ceilings and share a full bathroom, providing comfortable spaces for family or guests. The thoughtful design includes a utility room for laundry and additional storage needs, ensuring that practicality accompanies this home’s stylish aesthetic.

Outdoor living is accentuated by a second porch, perfect for leisurely evenings or morning coffee in the embrace of nature. With a generous living area of approximately 2,468 square feet, this floor plan caters to those who desire a home that combines majestic architecture with intimate living spaces, making it an ideal canvas for bringing your vision of an elegant and welcoming home to life.

Mortgage Calculator

The calculated amount is an estimate, with the exact
loan terms determined on an individual basis.
Estimated calculated amount does not include taxes & insurance.
$ 200000
$ 150000
$ 750000
$
[downpayment]/[homeprice]*100
%
([homeprice]-[downpayment])*([interestrate]/100)/12/(1-Math.pow(1+([interestrate]/100)/12,-([loanterm]*12)))
$

Request More Information