Floor Plan

*Plan may show available options & upgrades.

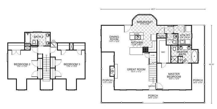
Dallas - Custom Home Floor Plan

Envision your life in this masterfully designed floor plan, ideal for those who value both charm and functionality in their custom-built home. Spanning a total under-roof area of 2640 sq. ft., this plan cleverly utilizes space to create a warm and inviting atmosphere.

Upon entry, you are greeted by a spacious great room, measuring 15’8″ x 17’2″, which serves as the heart of the home, where family and friends can gather. The great room opens up to a dining room, ensuring meals are enjoyed in a designated yet open space, enhancing the home’s social flow.

The kitchen, equipped with modern amenities and an adjoining breakfast area, is thoughtfully laid out to inspire culinary creativity while facilitating easy everyday dining. It also connects to a utility room, adding to the convenience with additional storage options.

The master suite is a sanctuary designed for relaxation, featuring a large bedroom with a sizeable porch for private outdoor access, a walk-in closet, and a master bath designed for comfort and ease.

Two additional bedrooms are situated on the second floor, each generously sized and conveniently located near the second full bathroom, offering privacy and comfort for family or guests. These rooms are versatile and can be adapted to any lifestyle, whether for sleeping, office work, or hobbies.

The wraparound porch is a signature feature of this home, providing ample space for outdoor leisure and entertainment, enhancing the indoor-outdoor living experience.

This floor plan represents an opportunity to craft a home that’s as practical as it is picturesque, perfect for those looking to create a space that’s truly their own.

Mortgage Calculator

The calculated amount is an estimate, with the exact
loan terms determined on an individual basis.
Estimated calculated amount does not include taxes & insurance.
$ 200000
$ 150000
$ 750000
$
[downpayment]/[homeprice]*100
%
([homeprice]-[downpayment])*([interestrate]/100)/12/(1-Math.pow(1+([interestrate]/100)/12,-([loanterm]*12)))
$

Request More Information

Unlock "Build Now" Financing

Get 0% down + No Payment Until Completion
*With Approved Credit

$5,000

Save On Upgrades