Floor Plan

*Plan may show available options & upgrades.

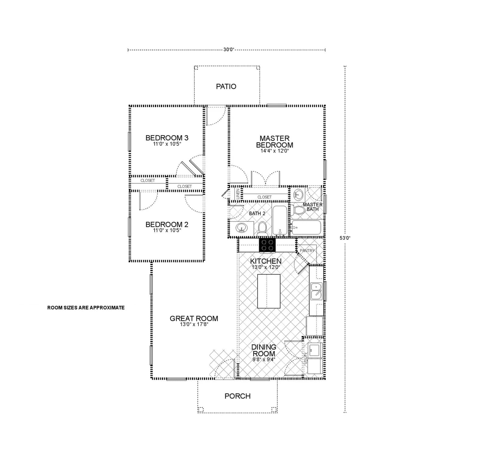
Henderson A Floorplan

The Henderson-A floor plan offers a streamlined and comfortable living experience, spreading across 1200 square feet. This home is perfectly suited for those who value both cozy living and efficient use of space.

Entering the home, the great room serves as the central hub, with a generous area of 13’0″ by 17’8″, ideal for family activities and entertainment. Adjacent to this space is the dining room, providing a pleasant 9’8″ by 9’4″ area for meals and gatherings. The kitchen, with dimensions of 13’0″ by 12’0″, is smartly designed to be both functional and aesthetically pleasing, featuring sufficient space for meal preparation and storage.

The master bedroom, located for privacy, is a comfortable retreat with a size of 14’4″ by 12’0″, complete with an adjoining master bath for convenience and ease. Two additional bedrooms, each measuring 11’0″ by 10’5″, offer ample space for family, guests, or a home office, each with easy access to the second full bathroom.

The home’s thoughtful design includes a patio, which extends the living space outdoors, perfect for relaxation or entertaining in the open air. With a total under-roof area of 1320 square feet, including the porch and patio, the Henderson-A floor plan presents a balance of inviting communal areas and private spaces, making it an attractive choice for those seeking a practical and charming home.

Mortgage Calculator

The calculated amount is an estimate, with the exact
loan terms determined on an individual basis.
Estimated calculated amount does not include taxes & insurance.
$ 200000
$ 150000
$ 750000
$
[downpayment]/[homeprice]*100
%
([homeprice]-[downpayment])*([interestrate]/100)/12/(1-Math.pow(1+([interestrate]/100)/12,-([loanterm]*12)))
$

Request More Information

Unlock "Build Now" Financing

Get 0% down + No Payment Until Completion
*With Approved Credit

$5,000

Save On Upgrades