Floor Plan

*Plan may show available options & upgrades.

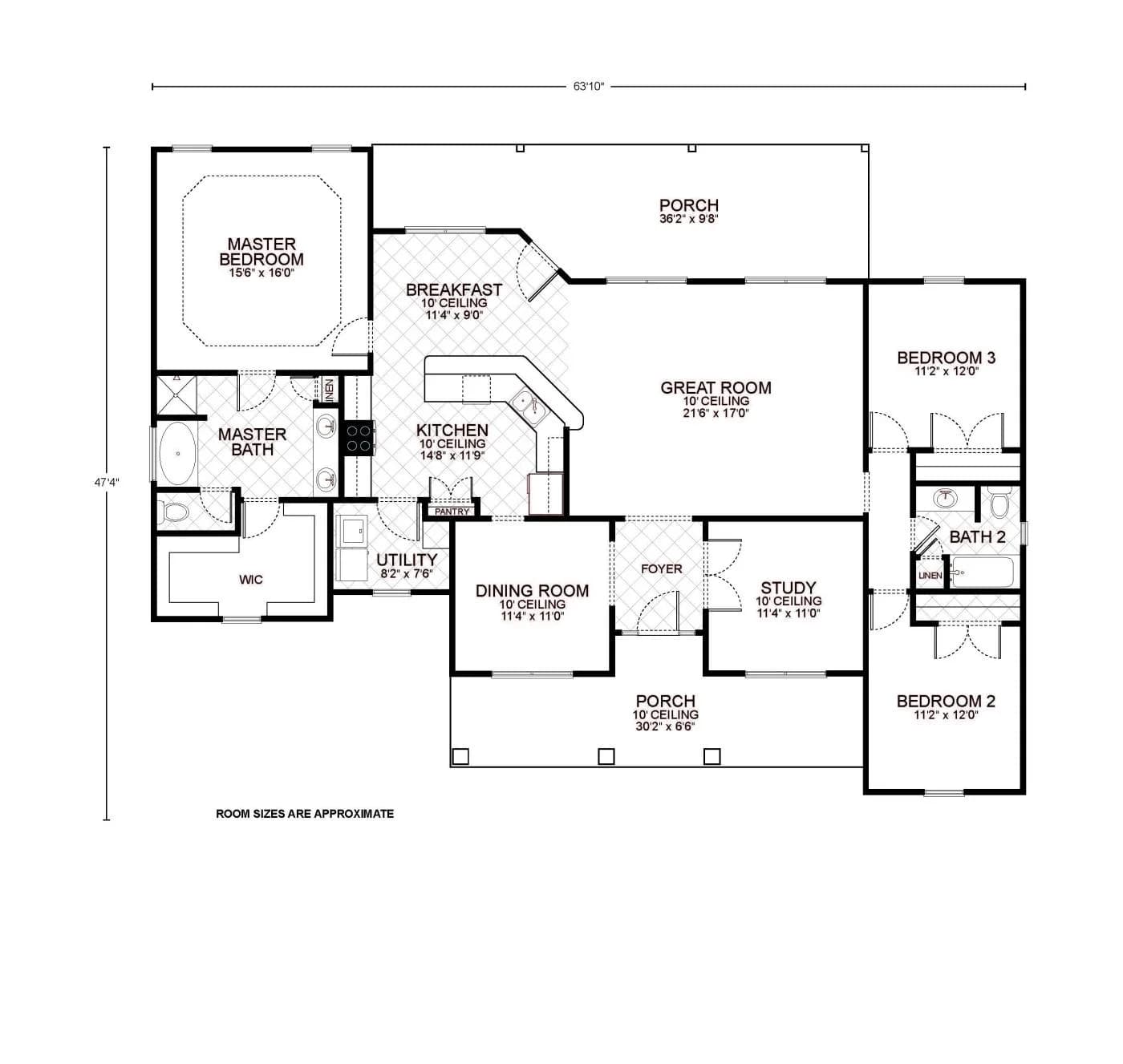
Kendall B - Custom Home Floor Plan

The Kendall B floor plan offers a sophisticated blend of modern living and timeless charm, making it a perfect template for those seeking to construct a custom home tailored to their lifestyle. The welcoming front porch ushers you into a spacious foyer that leads to a stunning great room with a lofty 10-foot ceiling, ideal for both casual lounging and elegant entertaining.

The kitchen is a culinary enthusiast’s dream, featuring a large island and a walk-in pantry. It adjoins a comfortable breakfast nook for informal dining and shares an open space with the great room, facilitating social interaction. The formal dining room, accented by a 10-foot ceiling, provides an exclusive area for sit-down dinners and special occasions.

The master suite is a luxurious retreat with its own 10-foot ceiling, ensuring a spacious and restful environment. It includes a master bath with dual vanities, a walk-in closet, and plenty of storage. Two additional bedrooms are thoughtfully placed to ensure privacy and convenience, each with easy access to a full bath, perfect for family or guests.

A study room with a 10-foot ceiling presents a versatile space that can be used as a home office or additional bedroom, depending on your needs. The utility room is smartly located for efficient household management. With a total living area of 2,033 square feet and additional porch space, this home design is carefully crafted to provide an elegant yet comfortable living experience, making the Kendall B an ideal choice for your custom-built home.

Mortgage Calculator

The calculated amount is an estimate, with the exact
loan terms determined on an individual basis.
Estimated calculated amount does not include taxes & insurance.
$ 200000
$ 150000
$ 750000
$
[downpayment]/[homeprice]*100
%
([homeprice]-[downpayment])*([interestrate]/100)/12/(1-Math.pow(1+([interestrate]/100)/12,-([loanterm]*12)))
$

Request More Information

Unlock "Build Now" Financing

Get 0% down + No Payment Until Completion
*With Approved Credit

$5,000

Save On Upgrades