Floor Plan

*Plan may show available options & upgrades.

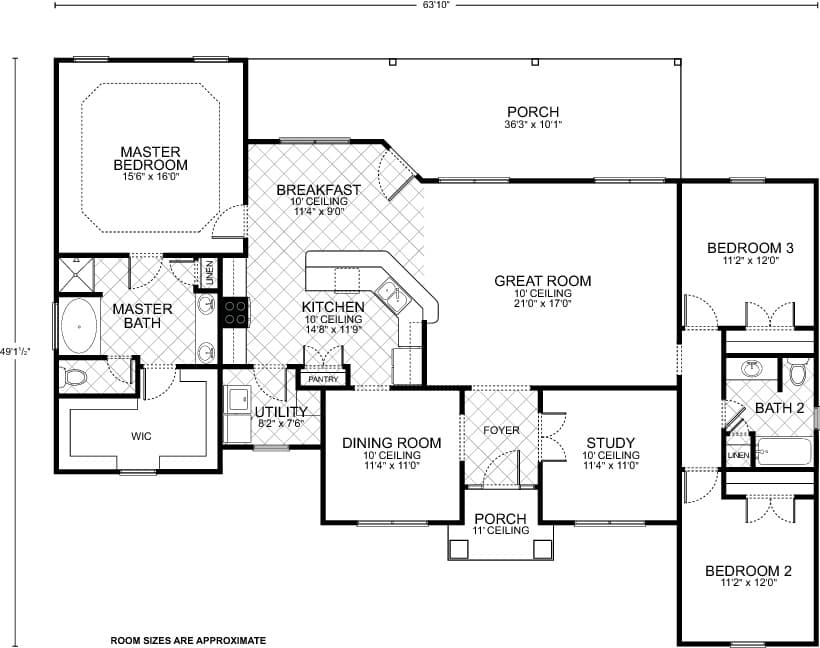
Kendall C - Custom Home Floor Plan

The Kendall C floor plan is a beautifully designed space that combines modern elegance with practical living. It features a spacious great room with a 10-foot ceiling, perfect for family gatherings and entertaining guests. The large kitchen is equipped with a pantry and an island that opens up to the breakfast nook, creating an inviting area for casual dining. A separate formal dining room offers a space for more traditional meals.

The master suite is a luxurious retreat with a walk-in closet and an en-suite bath, providing a private oasis for relaxation. Two additional bedrooms and a study, which can be used as a fourth bedroom, offer flexible space for family or a home office. The utility room and two porches, one at the entrance and another at the back, add to the home’s functionality and charm.

With 2,036 square feet of living space, the Kendall C floor plan is thoughtfully designed to optimize comfort and style, making it an ideal choice for a family looking for a blend of modern design and cozy living.

Mortgage Calculator

The calculated amount is an estimate, with the exact
loan terms determined on an individual basis.
Estimated calculated amount does not include taxes & insurance.
$ 200000
$ 150000
$ 750000
$
[downpayment]/[homeprice]*100
%
([homeprice]-[downpayment])*([interestrate]/100)/12/(1-Math.pow(1+([interestrate]/100)/12,-([loanterm]*12)))
$

Request More Information

Unlock "Build Now" Financing

Get 0% down + No Payment Until Completion
*With Approved Credit

$5,000

Save On Upgrades