Floor Plan

*Plan may show available options & upgrades.

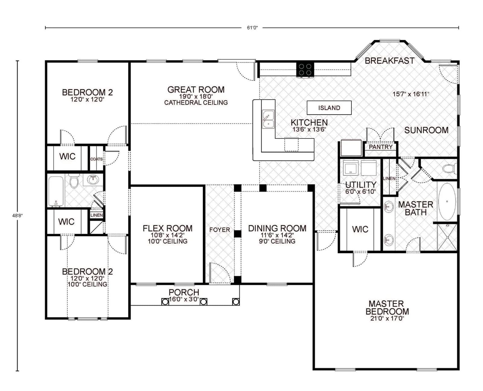
Amarillo B - Custom Home Floor Plan

Step into this masterfully designed floor plan, ideal for those who appreciate a harmonious blend of elegance and comfort in their custom home. At the forefront, a graceful porch ushers you into a spacious foyer, which leads to a versatile flex room with a 10-foot ceiling, offering endless possibilities as a home office, study, or playroom.

The heart of the home is undoubtedly the great room, grand with a cathedral ceiling and abundant space, perfect for lively gatherings or tranquil evenings by the fireplace. The great room flows effortlessly into the gourmet kitchen, which boasts a functional island and a walk-in pantry, ensuring that every culinary experience is a delight. The adjacent breakfast area, bathed in natural light, offers an inviting space for casual dining, with direct access to a sunroom where one can indulge in the serene views of the outdoors.

The master suite is a luxurious retreat, with its generous dimensions allowing for a king-size bed and additional seating. The adjoining master bath promises a spa-like experience with its dual vanities, standalone shower, and sumptuous soaking tub, leading to a spacious walk-in closet that fashion aficionados will adore.

On the opposite side of the home, a second bedroom with a full bath and walk-in closet provides a private oasis for guests or family members. The utility room, conveniently located off the kitchen, doubles as a laundry and additional storage space, while the formal dining room stands ready to host memorable dinners.

With approximately 2,376 square feet of living space and additional porch and sunroom areas, this plan offers a perfect canvas for those looking to craft a home that’s as inviting as it is functional. The blend of modern amenities and thoughtful design in this plan sets the stage for a home that’s not just lived in but cherished.

Mortgage Calculator

The calculated amount is an estimate, with the exact
loan terms determined on an individual basis.
Estimated calculated amount does not include taxes & insurance.
$ 200000
$ 150000
$ 750000
$
[downpayment]/[homeprice]*100
%
([homeprice]-[downpayment])*([interestrate]/100)/12/(1-Math.pow(1+([interestrate]/100)/12,-([loanterm]*12)))
$

Request More Information

Unlock "Build Now" Financing

Get 0% down + No Payment Until Completion
*With Approved Credit

$5,000

Save On Upgrades