Floor Plan

*Plan may show available options & upgrades.

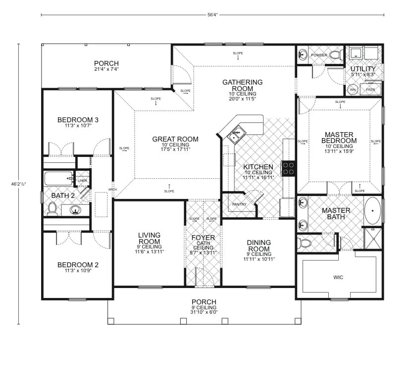
Cottage Ii - Custom Home Floor Plan
Gallery

This beautifully designed floor plan offers a blend of traditional charm and modern convenience, making it an ideal choice for those looking to build a custom home with character and comfort. The grand porch provides a warm welcome, leading into an elegant foyer that ushers you into the heart of the home.

The great room, with its soaring 10-foot ceiling, is the perfect space for both entertaining guests and enjoying quiet family time. It opens seamlessly into the gathering room and kitchen, creating a fluid living space that is both inviting and functional. The kitchen, complete with a walk-in pantry, is designed for both the casual cook and the gourmet chef, with ample space for dining and engagement.

A formal dining room adjacent to the kitchen provides an ideal setting for dinner parties and special occasions. The living room, with a 9-foot ceiling, offers an additional area for relaxation or can serve as a sophisticated space for more formal entertaining.

The master bedroom is a luxurious retreat, featuring a 10-foot ceiling and an en-suite master bath with a dual vanity, soaking tub, separate shower, and a large walk-in closet. Two additional bedrooms are thoughtfully placed to ensure privacy, each with easy access to a full bathroom.

The home includes a utility room, strategically located for convenience and practicality. With a total living area of 2,162 square feet, this floor plan is designed to provide a comfortable and stylish lifestyle, while the additional porch spaces offer extended outdoor living to enjoy the surroundings of your custom-built home.

Mortgage Calculator

The calculated amount is an estimate, with the exact
loan terms determined on an individual basis.
Estimated calculated amount does not include taxes & insurance.
$ 200000
$ 150000
$ 750000
$
[downpayment]/[homeprice]*100
%
([homeprice]-[downpayment])*([interestrate]/100)/12/(1-Math.pow(1+([interestrate]/100)/12,-([loanterm]*12)))
$

Request More Information

Unlock "Build Now" Financing

Get 0% down + No Payment Until Completion
*With Approved Credit

$5,000

Save On Upgrades