Floor Plan

*Plan may show available options & upgrades.

Alexander Plan

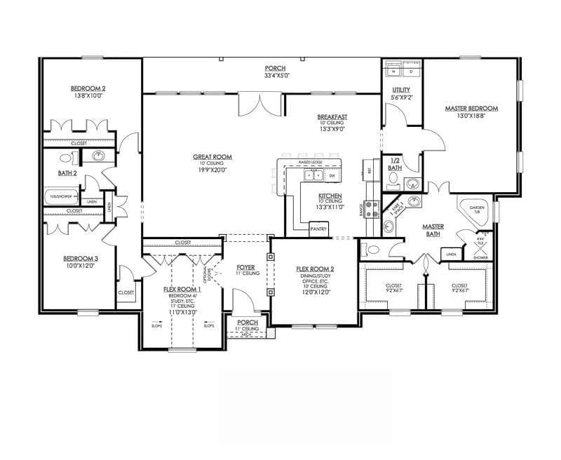
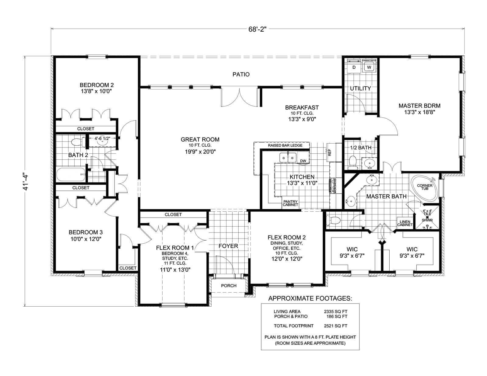
The Alexander floor plan offers a modern and spacious design, spanning 2335 square feet of living space that combines style, comfort, and versatility. This plan is perfect for a dynamic lifestyle, accommodating a range of activities from casual living to formal entertaining.

The home welcomes you with an inviting foyer that leads into a vast great room with a 10′ ceiling, providing a grand space for relaxation and social gatherings. The open layout flows into the breakfast area and a well-equipped kitchen, featuring a convenient pantry, ideal for the culinary enthusiast.

The master bedroom is a luxurious retreat with an en suite master bath that includes a double vanity, a separate water closet, and a sizable walk-in closet, offering a private sanctuary for relaxation. The utility room is strategically placed for efficiency and ease of use.

Two additional bedrooms provide ample space for family or guests, each with easy access to a full bath. The home’s design also includes two flexible spaces, which can serve as additional bedrooms, a home office, a den, or a playroom, offering the flexibility to tailor the home to your specific needs.

Outdoor living is emphasized with a large porch area, providing an extended space for enjoyment and entertainment. With a total under-roof area of 2521 square feet, including generous porch spaces, the Alexander floor plan ensures a comfortable and stylish living experience, making it an ideal choice for those who appreciate a blend of elegance and practicality in their home.

Mortgage Calculator

The calculated amount is an estimate, with the exact
loan terms determined on an individual basis.
Estimated calculated amount does not include taxes & insurance.
$ 200000
$ 150000
$ 750000
$
[downpayment]/[homeprice]*100
%
([homeprice]-[downpayment])*([interestrate]/100)/12/(1-Math.pow(1+([interestrate]/100)/12,-([loanterm]*12)))
$

Request More Information

Unlock "Build Now" Financing

Get 0% down + No Payment Until Completion
*With Approved Credit

$5,000

Save On Upgrades