Floor Plan

*Plan may show available options & upgrades.

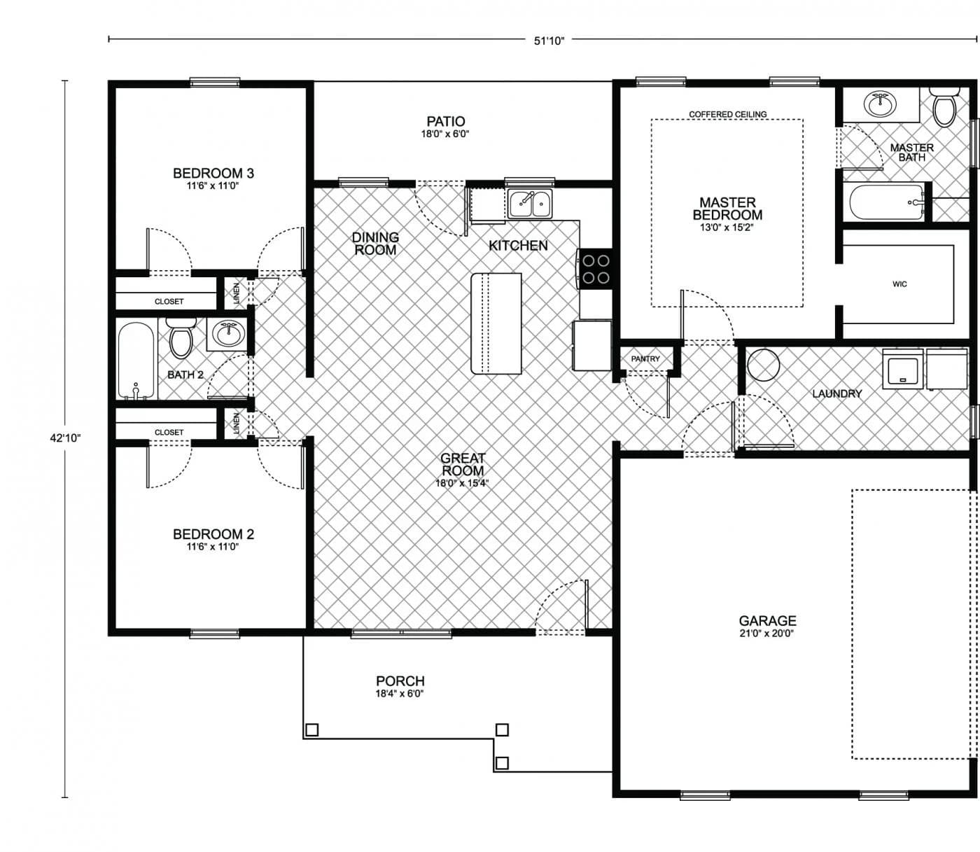
Driscoll Floorplan
Gallery

This meticulously crafted floor plan is ideal for those who desire a blend of modern design and homely comfort in their custom home. The welcoming porch leads into a spacious great room, the centerpiece of the home, with ample space for relaxation and socializing. A coffered ceiling in the master bedroom adds an element of architectural sophistication, creating a luxurious retreat complete with a private master bath and a large walk-in closet.

The kitchen, strategically located at the heart of the home, is a chef’s delight, featuring modern appliances, a pantry for extra storage, and an efficient layout that opens up to the dining area, making meal preparation and entertaining a seamless experience. The adjacent patio offers additional space for outdoor dining and leisure, extending the living area into the natural surroundings.

Two additional bedrooms provide comfortable accommodations for family or guests, each with convenient access to a shared full bath. A dedicated laundry room adds to the home’s practicality, ensuring that daily routines are handled with ease.

With a total living area of 1,383 square feet, this floor plan is thoughtfully designed to optimize space without compromising on style or functionality, making it an exceptional foundation for your new home.

Mortgage Calculator

The calculated amount is an estimate, with the exact
loan terms determined on an individual basis.
Estimated calculated amount does not include taxes & insurance.
$ 200000
$ 150000
$ 750000
$
[downpayment]/[homeprice]*100
%
([homeprice]-[downpayment])*([interestrate]/100)/12/(1-Math.pow(1+([interestrate]/100)/12,-([loanterm]*12)))
$

Request More Information

Unlock "Build Now" Financing

Get 0% down + No Payment Until Completion
*With Approved Credit

$5,000

Save On Upgrades