Floor Plan

*Plan may show available options & upgrades.

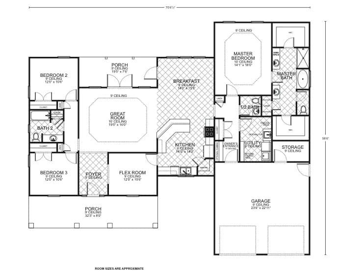
Hillcrest - Custom Home Floor Plan

The Hillcrest floor plan is a testament to modern architectural design, offering a blend of comfort, style, and practicality that makes it an ideal choice for your custom home. The floor plan reveals a spacious great room with a 9-foot ceiling, the central hub of the home for family gatherings and entertainment, accentuated by an abundance of natural light.

The kitchen is a chef’s dream, featuring an efficient layout, modern appliances, a pantry, and a convenient owner’s entrance. It flows into a cozy breakfast area, providing a perfect spot for informal meals, with easy access to the outdoor porch for an open-air dining experience. The plan also includes a flex room that can serve as an extra bedroom, home office, or den, catering to various needs and lifestyles.

The master bedroom, with its own 9-foot ceiling, is a private sanctuary designed to offer tranquility and comfort. It boasts a luxurious en-suite master bath with a spacious walk-in closet. Two additional bedrooms, each with ample closet space, share a full bathroom and are positioned to maximize privacy for family members or guests.

The utility room provides a discrete area for laundry and storage, enhancing the home’s functionality. With an expansive garage and additional storage space, the Hillcrest floor plan thoughtfully addresses all aspects of daily living.

This plan, encompassing a total living area of 2,200 square feet, is carefully crafted to provide an elegant and efficient living space, making it an excellent canvas for those seeking to create a home that is both inviting and practical.

Mortgage Calculator

The calculated amount is an estimate, with the exact
loan terms determined on an individual basis.
Estimated calculated amount does not include taxes & insurance.
$ 200000
$ 150000
$ 750000
$
[downpayment]/[homeprice]*100
%
([homeprice]-[downpayment])*([interestrate]/100)/12/(1-Math.pow(1+([interestrate]/100)/12,-([loanterm]*12)))
$

Request More Information

Unlock "Build Now" Financing

Get 0% down + No Payment Until Completion
*With Approved Credit

$5,000

Save On Upgrades