Durango Classic

Floor Plan

*Plan may show available options & upgrades.

Durango Classic - Custom Home Floor Plan

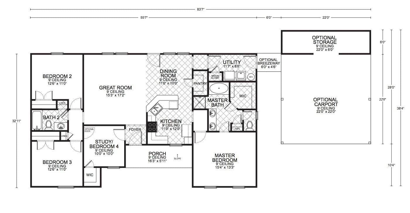
Introducing the Durango Classic, a floor plan that perfectly balances elegance with practicality, ideal for crafting your custom home. The inviting porch leads you into a spacious foyer that opens to a great room with a 9-foot ceiling, offering a vast space for both family gatherings and refined entertainment.

The kitchen is a chef’s delight, with ample countertop space, a convenient pantry, and an island that is perfect for meal prep and casual dining. The adjoining dining room provides a seamless space for enjoyable meals with a view of the outdoors. For those who need a home office or an extra bedroom, the study room offers flexibility to fit your lifestyle needs.

The master bedroom suite is designed as a private retreat with a 9-foot ceiling, featuring a large walk-in closet and an en-suite master bath equipped with modern amenities for a luxurious feel. Two additional bedrooms provide comfortable living space and are conveniently located near the second full bathroom, perfect for family or guests.

An optional carport and storage area, accessible via an optional breezeway, offer additional space and functionality to the home. With a total living area of 1,632 square feet, this home is thoughtfully designed to maximize space and provide a comfortable living environment with a classic touch. The Durango Classic is an excellent foundation for your new home, blending timeless design with modern living.

Mortgage Calculator

The calculated amount is an estimate, with the exact
loan terms determined on an individual basis.
Estimated calculated amount does not include taxes & insurance.
$ 200000
$ 150000
$ 750000
$
[downpayment]/[homeprice]*100
%
([homeprice]-[downpayment])*([interestrate]/100)/12/(1-Math.pow(1+([interestrate]/100)/12,-([loanterm]*12)))
$

Request More Information

Unlock "Build Now" Financing

Get 0% down + No Payment Until Completion
*With Approved Credit

$5,000

Save On Upgrades