Floor Plan

*Plan may show available options & upgrades.

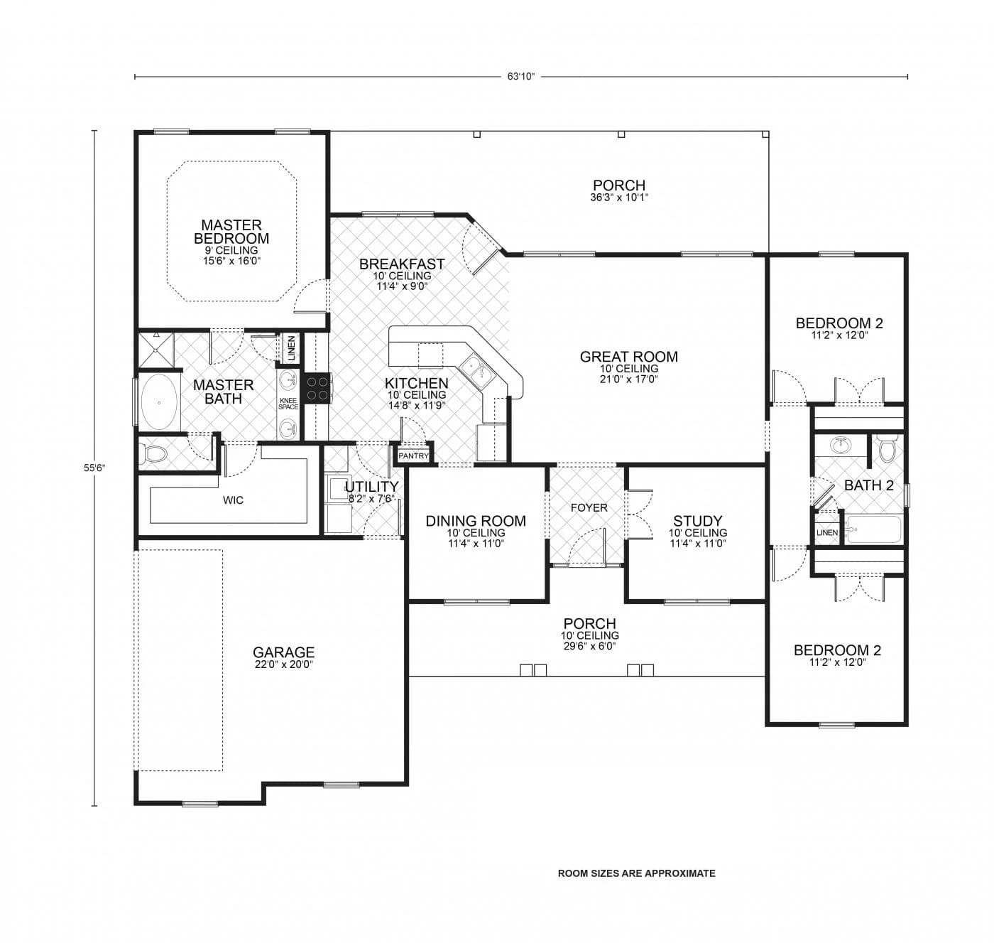
Hillsboro B - Custom Home Floor Plan.png

The Hillsboro B floor plan is a beautifully designed space that marries practicality with modern elegance, perfect for anyone looking to build a custom home that caters to both entertaining and private living. The generous porch invites you into a welcoming foyer, which leads into a stunning great room with a soaring 10-foot ceiling, providing an airy and open space for gatherings and relaxation.

Adjacent to the great room, the kitchen stands as the heart of the home, complete with a walk-in pantry and a center island that overlooks the breakfast nook, ideal for casual dining and engaging conversations. For more formal occasions, the dining room offers a distinct space that promises to make every meal feel like a special event.

The master suite is a private retreat designed with a 9-foot ceiling to enhance the sense of spaciousness. It boasts a sizable master bath with a dual vanity, a walk-in closet, and ample storage. Across the home, two additional bedrooms are conveniently located with easy access to a full bathroom, providing comfortable accommodations for family or guests.

The study, with a 10-foot ceiling, adds an element of versatility to the floor plan, suitable for a home office, library, or additional guest room. The utility room is strategically placed for efficiency, leading out to the garage. With a living area of 2,032 square feet, this home is thoughtfully laid out to maximize both comfort and function, making the Hillsboro B an exceptional choice for your new custom home.

Mortgage Calculator

The calculated amount is an estimate, with the exact
loan terms determined on an individual basis.
Estimated calculated amount does not include taxes & insurance.
$ 200000
$ 150000
$ 750000
$
[downpayment]/[homeprice]*100
%
([homeprice]-[downpayment])*([interestrate]/100)/12/(1-Math.pow(1+([interestrate]/100)/12,-([loanterm]*12)))
$

Request More Information

Unlock "Build Now" Financing

Get 0% down + No Payment Until Completion
*With Approved Credit

$5,000

Save On Upgrades