Floor Plan

*Plan may show available options & upgrades.

Leyland - Custom Home Floor Plan
Gallery

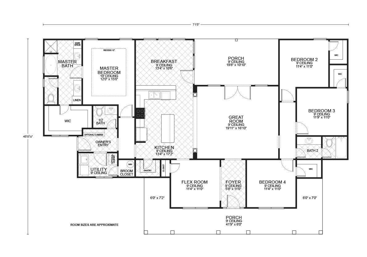
The Leyland floor plan is a well-appointed design that offers a balance of luxury and functionality, making it an attractive choice for those seeking to create a custom home with spacious and adaptable living areas. The plan features a sizable porch that leads into an elegant foyer, unfolding into a great room with a 9-foot ceiling, perfect for comfortable living and hosting guests.

The kitchen is a delight for those who love to cook and entertain, equipped with modern appliances, a pantry, and a central island that merges seamlessly with the breakfast nook, providing a casual dining space. A formal dining room adjacent to the kitchen allows for more traditional gatherings.

The master suite is a retreat within the home, offering a 10-foot ceiling, a large walk-in closet, and a master bath with all the amenities for a private spa-like experience. The home includes three additional bedrooms, each with ample closet space and easy access to the shared full bath, accommodating the needs of family and guests alike.

A flex room provides the flexibility for a home office, playroom, or additional bedroom, ensuring that the home can adapt to changing needs. The utility room, complete with a broom closet, enhances organization and leads to a spacious garage. With a total living area of 2,223 square feet, the Leyland floor plan is a thoughtful combination of grandeur and practicality, perfectly suited to those looking to build a home that is both expansive and welcoming.

Mortgage Calculator

The calculated amount is an estimate, with the exact
loan terms determined on an individual basis.
Estimated calculated amount does not include taxes & insurance.
$ 200000
$ 150000
$ 750000
$
[downpayment]/[homeprice]*100
%
([homeprice]-[downpayment])*([interestrate]/100)/12/(1-Math.pow(1+([interestrate]/100)/12,-([loanterm]*12)))
$

Request More Information

Unlock "Build Now" Financing

Get 0% down + No Payment Until Completion
*With Approved Credit

$5,000

Save On Upgrades