Floor Plan

*Plan may show available options & upgrades.

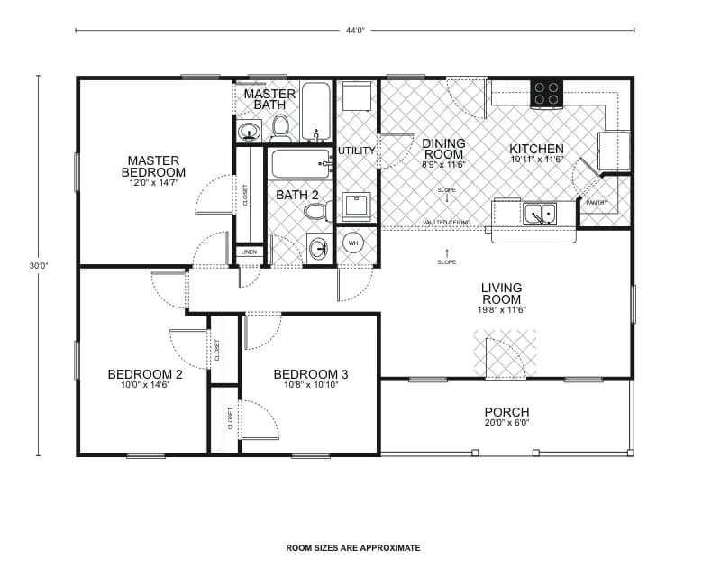
Homestead - Custom Home Floor Plan

Welcome to the Homestead, a charming floor plan offering a cozy yet spacious layout, perfect for those looking to build a personalized custom home. This design smartly utilizes its 1200 sq. ft. living area to create an inviting atmosphere that feels both intimate and open.

Upon entering, you are welcomed into a generous living room, bathed in natural light, with plenty of space for family activities and entertaining guests. The vaulted ceiling adds a touch of grandeur and a feeling of expanded space, enhancing the room’s welcoming ambiance.

The adjacent dining room is conveniently situated next to the kitchen, making meal service a breeze. The kitchen, featuring modern amenities and a dedicated pantry, is designed for efficiency and ease, allowing the family chef to prepare meals while still being part of the conversation in the living and dining areas.

The master suite is a comfortable retreat, complete with a sizable bedroom, a private master bath, and ample closet space, ensuring a peaceful and private space to unwind.

Two additional bedrooms offer versatility, whether used as children’s rooms, guest rooms, or a home office, each located conveniently near the second full bathroom.

A practical utility room serves as an excellent space for laundry and additional storage, contributing to the home’s overall functionality.

The highlight of this plan is the inviting front porch, spanning 20′ x 6′, which provides a picturesque setting for enjoying the outdoors and extending the living space in a way that embraces the surrounding landscape.

With a total under-roof area of 1320 sq. ft., the Homestead floor plan is a delightful option for those seeking a balance of comfort, practicality, and the simple pleasures of home.

Mortgage Calculator

The calculated amount is an estimate, with the exact
loan terms determined on an individual basis.
Estimated calculated amount does not include taxes & insurance.
$ 200000
$ 150000
$ 750000
$
[downpayment]/[homeprice]*100
%
([homeprice]-[downpayment])*([interestrate]/100)/12/(1-Math.pow(1+([interestrate]/100)/12,-([loanterm]*12)))
$

Request More Information

Unlock "Build Now" Financing

Get 0% down + No Payment Until Completion
*With Approved Credit

$5,000

Save On Upgrades