Floor Plan

*Plan may show available options & upgrades.

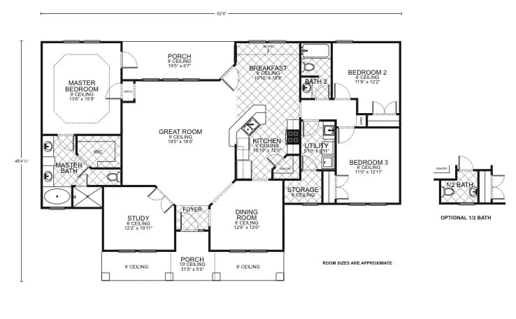
Frio - Custom Home Floor Plan

The Frio floor plan is an ideal blend of elegance and comfort, a perfect starting point for those seeking to custom-build a home with both character and contemporary conveniences. As you step through the expansive front porch, you’re welcomed into a bright foyer that leads into an impressive great room with a 9-foot ceiling, offering a spacious area for family gatherings and entertainment.

The kitchen, designed to be both functional and stylish, features ample counter space, modern appliances, and a pantry. It overlooks a charming breakfast nook, creating a perfect spot for casual dining, while the adjacent dining room is suited for more formal occasions. The study, with its own dedicated space, provides a quiet retreat for work or leisure.

The master suite is a private sanctuary with a coffered ceiling, adding an element of sophistication. It includes a well-appointed master bath with dual vanities and a generous walk-in closet, providing a serene and organized personal space. Two additional bedrooms are strategically placed to ensure privacy, with convenient access to the second full bath.

A utility room is smartly located for household chores, and the home includes additional storage spaces to keep living areas uncluttered. With a total living area of 1,880 square feet and additional porch space, this floor plan is thoughtfully designed to provide a comfortable and stylish lifestyle, making it an excellent foundation for your dream home.

Mortgage Calculator

The calculated amount is an estimate, with the exact
loan terms determined on an individual basis.
Estimated calculated amount does not include taxes & insurance.
$ 200000
$ 150000
$ 750000
$
[downpayment]/[homeprice]*100
%
([homeprice]-[downpayment])*([interestrate]/100)/12/(1-Math.pow(1+([interestrate]/100)/12,-([loanterm]*12)))
$

Request More Information

Unlock "Build Now" Financing

Get 0% down + No Payment Until Completion
*With Approved Credit

$5,000

Save On Upgrades