Floor Plan

*Plan may show available options & upgrades.

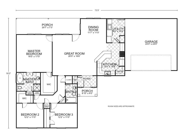
La Espada - Custom Home Floor Plan
Virtual Tour

The La Espada floor plan is a harmonious combination of luxury and practical design, offering an expansive living area of 1808 sq. ft. for those looking to build their custom dream home.

From the moment you step onto the grand front porch and through the foyer, you are greeted by the openness of a large great room, the focal point of the home, perfect for family gatherings and entertainment. Its strategic position allows for a seamless flow into the dining area, making it ideal for hosting dinner parties or enjoying everyday meals.

The kitchen is a chef’s dream, with ample counter space, a convenient pantry, and a layout that allows for social cooking experiences. The adjacent utility room provides additional storage and functionality, keeping the home’s workspace tidy and efficient.

The master suite is a private oasis, offering a generous bedroom area, a luxurious master bath complete with a walk-in closet, and an additional porch, creating a serene retreat for relaxation.

Two more bedrooms, each with ample closet space, share access to a full bath, ensuring comfort and privacy for family or guests. These rooms can easily be adapted for various uses, such as home offices, craft rooms, or play areas, based on your lifestyle.

Completing this magnificent layout is the large garage, offering not just parking space but also room for hobbies or storage.

The La Espada plan, with a total under-roof area of 2624 sq. ft., including front and back porches, is designed to be both functional and aesthetically pleasing, ensuring that every square foot is utilized to its fullest potential to create a warm and inviting atmosphere in your new home.

Mortgage Calculator

The calculated amount is an estimate, with the exact
loan terms determined on an individual basis.
Estimated calculated amount does not include taxes & insurance.
$ 200000
$ 150000
$ 750000
$
[downpayment]/[homeprice]*100
%
([homeprice]-[downpayment])*([interestrate]/100)/12/(1-Math.pow(1+([interestrate]/100)/12,-([loanterm]*12)))
$

Request More Information

Unlock "Build Now" Financing

Get 0% down + No Payment Until Completion
*With Approved Credit

$5,000

Save On Upgrades