Floor Plan

*Plan may show available options & upgrades.

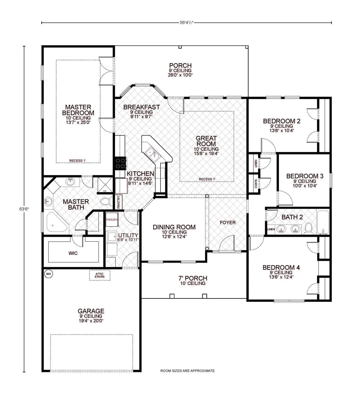
Navasota B - Custom Home Floor Plan

This alluring floor plan is a seamless integration of classic design and modern amenities, spanning approximately 2180 square feet of living space. It is expertly crafted to offer an environment of warmth and elegance.

The master suite is a luxurious escape with its expansive bedroom, a lavish master bath complete with all the refinements, and a generous walk-in closet. The open design concept interlinks the great room, with its soaring 10-foot ceiling, to the well-appointed kitchen and delightful breakfast nook, forming the heart of the home for family activities and entertainment.

The kitchen is a culinary dream with its optimal ceiling height and ample counter space, while the breakfast nook serves as a charming spot for casual dining with access to a serene porch. A distinguished dining room with a 10-foot ceiling awaits formal gatherings.

Three additional bedrooms, each with 9-foot ceilings, ensure that everyone has their private retreat, complemented by a full second bathroom. The home’s thoughtful design includes a practical utility room, a welcoming foyer that sets the stage for the home’s ambiance, and a spacious two-car garage.

Outdoors, the home features a stately front porch and a substantial back porch, providing multiple vantage points to enjoy the surrounding scenery. The total under-roof area of 2898 square feet affords ample space for a blend of active living and gracious entertaining, making this home an impeccable choice for discerning homeowners.

Mortgage Calculator

The calculated amount is an estimate, with the exact
loan terms determined on an individual basis.
Estimated calculated amount does not include taxes & insurance.
$ 200000
$ 150000
$ 750000
$
[downpayment]/[homeprice]*100
%
([homeprice]-[downpayment])*([interestrate]/100)/12/(1-Math.pow(1+([interestrate]/100)/12,-([loanterm]*12)))
$

Request More Information

Unlock "Build Now" Financing

Get 0% down + No Payment Until Completion
*With Approved Credit

$5,000

Save On Upgrades