Floor Plan

*Plan may show available options & upgrades.

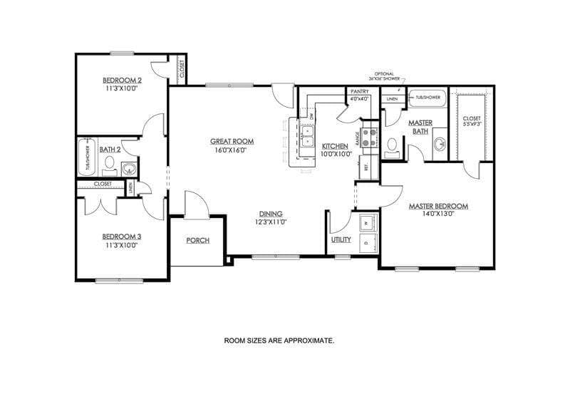
Madison - Custom Home Floor Plan

The Madison floor plan is a well-organized and inviting design, featuring a living area of 1230 square feet, perfectly suited for families or individuals seeking a combination of comfort and functionality.

As you enter the home, the great room stands out with its ample space, measuring 16’0″ x 16’0″, which makes it an ideal setting for family time and entertainment. Adjacent to the great room is the dining area, at 12’3″ x 11’0″, providing a comfortable setting for meals. The kitchen, with a size of 10’0″ x 10’0″, is efficiently designed with a pantry for extra storage, making it a functional and inviting space for cooking and socializing.

The master bedroom offers a private retreat at 14’0″ x 13’0″, complemented by a master bath and a sizable closet, ensuring a peaceful and organized personal space. Two additional bedrooms, each 11’3″ x 10’0″, offer comfortable accommodations for family members or guests, with a second bathroom conveniently located for accessibility.

The utility room is sensibly placed to serve as a functional area for laundry and storage, contributing to the home’s overall practicality. Additionally, the porch provides an outdoor area for relaxation and enjoyment of the surroundings.

With a total under-roof area of 1271 square feet, including the porch, the Madison floor plan is designed to maximize living space without compromising on style or comfort, making it an appealing option for a cozy and modern home.

Mortgage Calculator

The calculated amount is an estimate, with the exact
loan terms determined on an individual basis.
Estimated calculated amount does not include taxes & insurance.
$ 200000
$ 150000
$ 750000
$
[downpayment]/[homeprice]*100
%
([homeprice]-[downpayment])*([interestrate]/100)/12/(1-Math.pow(1+([interestrate]/100)/12,-([loanterm]*12)))
$

Request More Information

Unlock "Build Now" Financing

Get 0% down + No Payment Until Completion
*With Approved Credit

$5,000

Save On Upgrades