Floor Plan

*Plan may show available options & upgrades.

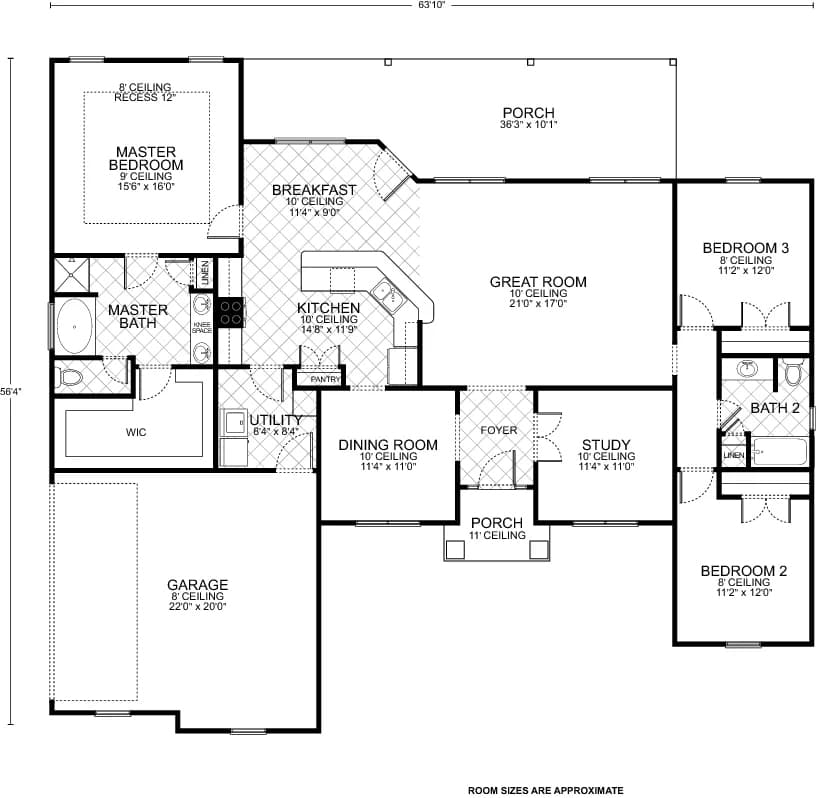
Hillsboro C - Custom Home Floor Plan

The Hillsboro C floor plan is a beautifully crafted layout, ideal for those looking to build a custom home that combines functional design with aesthetic appeal. The plan features a sprawling porch leading into a welcoming foyer, which then opens up to a spacious great room with a 10-foot ceiling—perfect for hosting guests or enjoying family time.

The kitchen, thoughtfully situated at the heart of the home, boasts a pantry and a sizable island that overlooks the breakfast area, ensuring meals are a communal and inviting experience. The formal dining room, with its own elegant ceiling design, offers a dedicated space for sit-down meals.

The master suite is a luxurious retreat, with a tray ceiling in the bedroom for added depth and style, a lavish master bath, and a walk-in closet. The home also includes two additional bedrooms, each with easy access to a full bathroom, ensuring comfort and privacy for all inhabitants.

A utility room provides practical space for household management, while a study offers the flexibility to serve as a home office, library, or extra bedroom. With a living area totaling 2,051 square feet, this floor plan is an excellent canvas for creating a home that’s as cozy as it is sophisticated, offering a seamless blend of public and private spaces to cater to any lifestyle.

Mortgage Calculator

The calculated amount is an estimate, with the exact
loan terms determined on an individual basis.
Estimated calculated amount does not include taxes & insurance.
$ 200000
$ 150000
$ 750000
$
[downpayment]/[homeprice]*100
%
([homeprice]-[downpayment])*([interestrate]/100)/12/(1-Math.pow(1+([interestrate]/100)/12,-([loanterm]*12)))
$

Request More Information

Unlock "Build Now" Financing

Get 0% down + No Payment Until Completion
*With Approved Credit

$5,000

Save On Upgrades