Floor Plan

*Plan may show available options & upgrades.

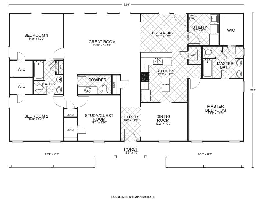
Ponderosa B - Custom Home Floor Plan

This floor plan, known as “Ponderosa B,” spans a generous 2108 square feet of living area, offering a blend of comfort and sophistication that’s perfect for both daily life and upscale entertaining. The layout has been thoughtfully designed to optimize space and functionality while maintaining a sense of luxury.

Upon entering, the spacious foyer unfolds into a grand great room, which serves as the centerpiece of the home, offering ample space for family activities and hosting guests. The adjacent kitchen, with a convenient island, is a cook’s dream, opening to a cozy breakfast nook, ideal for morning gatherings and informal meals. The kitchen’s layout is a balance of efficiency and style, providing the perfect setting for culinary exploration.

The master suite is a private oasis, featuring a sizable bedroom, a well-appointed master bath with dual vanities, and a large walk-in closet, crafting a serene retreat for relaxation and rejuvenation. On the opposite side of the home, two additional bedrooms, each with walk-in closets, share a full bathroom, ensuring privacy for family members or guests.

A versatile study or guest room adds flexibility to the floor plan, providing space for a home office, library, or additional guest accommodations. The formal dining room offers an elegant space for dinners and special occasions.

Practicality is also a hallmark of this design, with a utility room smartly positioned for household management. The expansive porch wraps around the front and side, inviting outdoor living and enjoyment of the surroundings.

With a total under-roof area of 2480 square feet, including the welcoming front porch, this home epitomizes a balanced lifestyle, offering both the warmth of family life and the elegance required for entertaining guests. The “Ponderosa B” is an excellent choice for those who desire a home that combines practical living with an air of sophistication.

Mortgage Calculator

The calculated amount is an estimate, with the exact
loan terms determined on an individual basis.
Estimated calculated amount does not include taxes & insurance.
$ 200000
$ 150000
$ 750000
$
[downpayment]/[homeprice]*100
%
([homeprice]-[downpayment])*([interestrate]/100)/12/(1-Math.pow(1+([interestrate]/100)/12,-([loanterm]*12)))
$

Request More Information

Unlock "Build Now" Financing

Get 0% down + No Payment Until Completion
*With Approved Credit

$5,000

Save On Upgrades