Floor Plan

*Plan may show available options & upgrades.

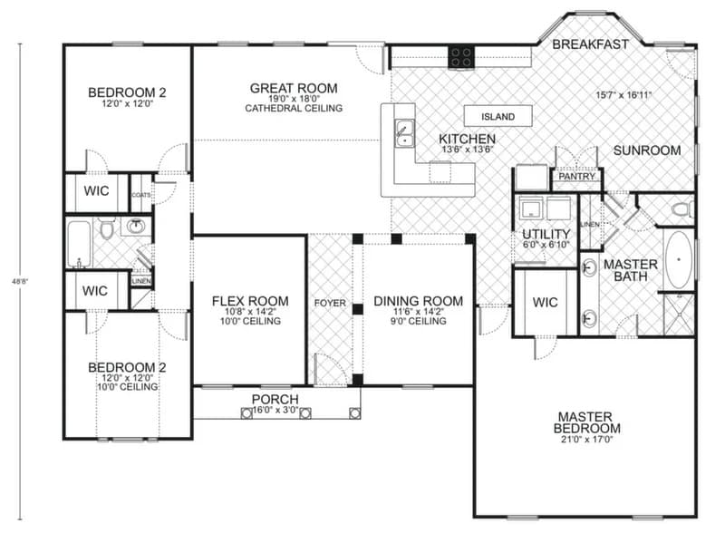
Amarillo - Custom Home Floor Plan

This captivating floor plan, with a stately front porch, invites you into a world of elegance and modern comfort ideal for building your custom dream home. As you enter, the foyer opens to a flexible room that can serve as a home office, library, or den, providing a quiet space for work or relaxation.

The home’s centerpiece, a majestic great room with a cathedral ceiling, promises to be a hub for family gatherings and entertainment, while a wall of windows bathes the space in natural light. Adjacent to the great room is a gourmet kitchen, boasting a practical island and a walk-in pantry that every home chef will adore. The open-plan layout ensures that whether you’re preparing a meal or enjoying casual dining in the breakfast nook, you’re never far from the heart of the home.

The sumptuous master suite is a private haven, featuring a vast bedroom area with room for a sitting alcove, and a luxurious en-suite bath complete with dual vanities, a separate shower, a soaking tub, and a spacious walk-in closet. A dedicated sunroom offers a peaceful retreat with views of your garden or backyard.

A second bedroom, complete with its own walk-in closet, is perfect for family or guests, ensuring privacy and comfort. The utility room, conveniently located near the kitchen, serves as a laundry and additional storage space, leading to a practical linen closet.

Completing this home are thoughtful details like a formal dining room for celebratory meals and a secondary porch for enjoying quiet evenings outdoors. With an overall living area of approximately 2,376 square feet, this floor plan is designed for those who appreciate a blend of grandeur and functionality, making it the perfect canvas for your custom-built residence.

Mortgage Calculator

The calculated amount is an estimate, with the exact
loan terms determined on an individual basis.
Estimated calculated amount does not include taxes & insurance.
$ 200000
$ 150000
$ 750000
$
[downpayment]/[homeprice]*100
%
([homeprice]-[downpayment])*([interestrate]/100)/12/(1-Math.pow(1+([interestrate]/100)/12,-([loanterm]*12)))
$

Request More Information

Unlock "Build Now" Financing

Get 0% down + No Payment Until Completion
*With Approved Credit

$5,000

Save On Upgrades