Floor Plan

*Plan may show available options & upgrades.

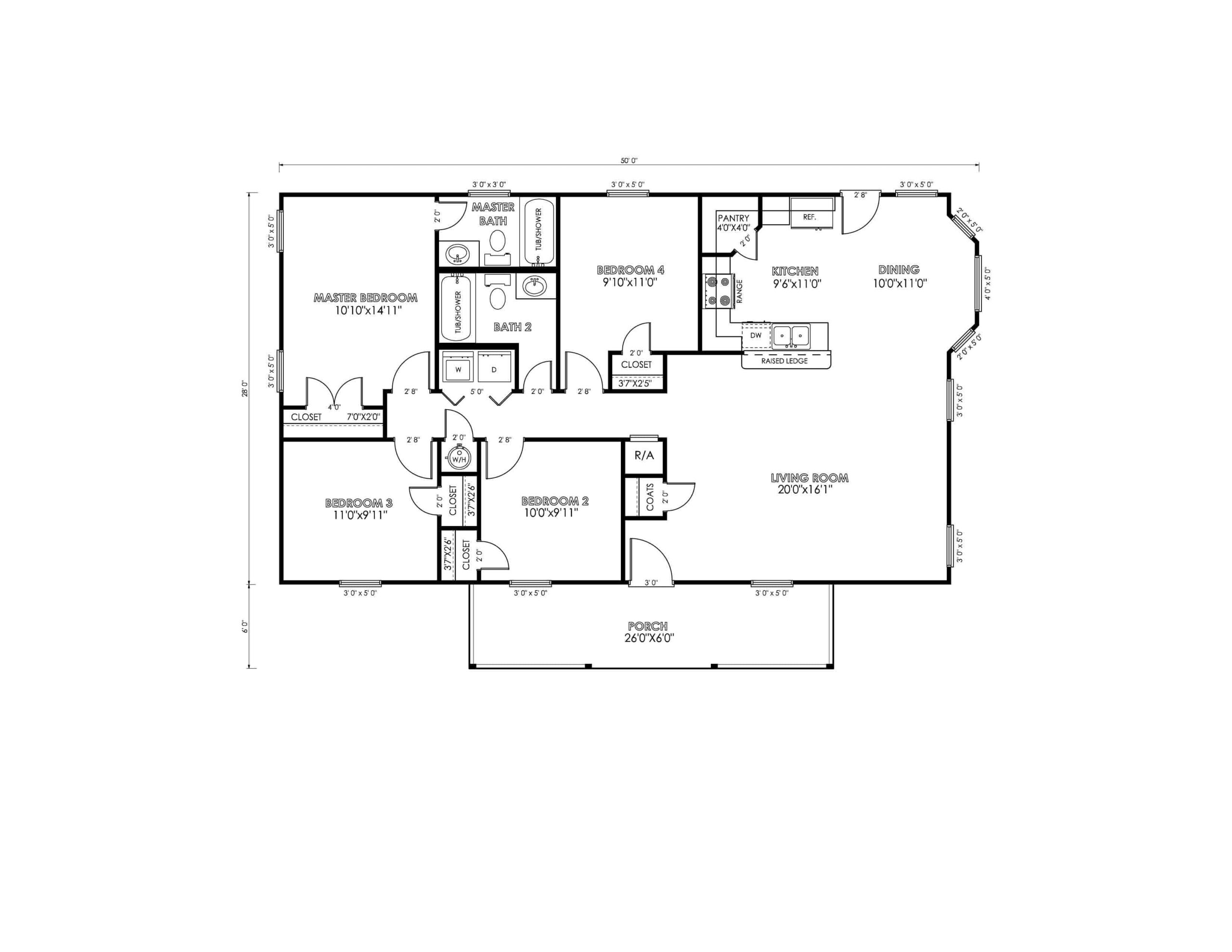
San Marcos Floor Plan

Introducing the San Marcos-C floor plan, a beautifully crafted home spanning 1360 square feet of thoughtfully designed living space, offering comfort and style in a compact footprint. This home is ideal for those seeking a blend of modern living with traditional charm.

The master suite is well-appointed, providing a cozy retreat with a private bathroom and a sizable closet. The heart of the home, the living room, is spacious and inviting, perfect for family gatherings or relaxing evenings, with ample space flowing seamlessly into the dining area, ensuring a comfortable environment for meals and socializing.

The kitchen, efficient in design, features modern amenities, a convenient pantry for extra storage, and a layout that makes cooking and engaging with family or guests a breeze. Adjacent to the kitchen, the dining room offers a lovely space for sit-down meals, with direct access to the sizable porch for an extended dining experience outdoors.

Three additional bedrooms are nestled away from the main living areas, providing privacy and quiet spaces for all members of the household. The shared second bathroom is easily accessible, along with a practical laundry room, enhancing the home’s functionality.

Completing this charming home is the inviting porch, a perfect setting for enjoying the outdoors and enhancing the home’s curb appeal. With a total under-roof area of 1516 square feet, the San Marcos-C floor plan presents a comfortable and efficient living option, making it a perfect choice for those looking to maximize their living experience without sacrificing style and comfort.

Mortgage Calculator

The calculated amount is an estimate, with the exact
loan terms determined on an individual basis.
Estimated calculated amount does not include taxes & insurance.
$ 200000
$ 150000
$ 750000
$
[downpayment]/[homeprice]*100
%
([homeprice]-[downpayment])*([interestrate]/100)/12/(1-Math.pow(1+([interestrate]/100)/12,-([loanterm]*12)))
$

Request More Information

Unlock "Build Now" Financing

Get 0% down + No Payment Until Completion
*With Approved Credit

$5,000

Save On Upgrades