Floor Plan

*Plan may show available options & upgrades.

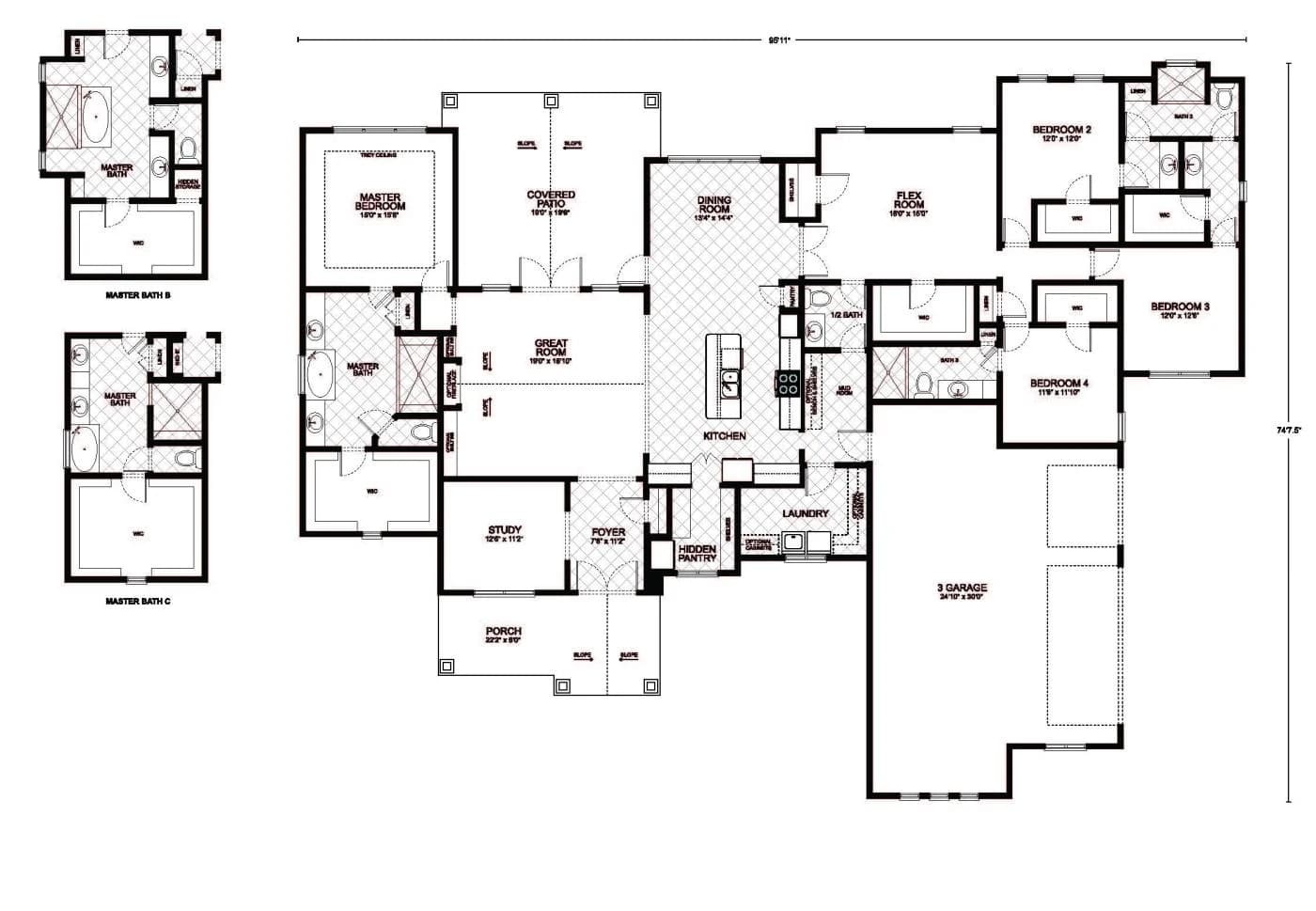
Carthage - Custom Home Floor Plan

This expansive floor plan is a masterpiece of design and craftsmanship, offering a luxurious canvas for those wishing to build a custom home that reflects their taste and lifestyle. The grand porch invites you into an elegant foyer, a prelude to the home’s sophisticated character. The foyer opens to a stately great room, a perfect blend of scale and comfort, with ample space for entertaining and everyday living.

The heart of the home is the gourmet kitchen, which features a hidden pantry for added storage and an island that invites casual dining and conversation. The kitchen flows gracefully into the dining room, creating an open yet intimate space for meals. A covered patio extends the living space outdoors, ideal for enjoying the beauty of your surroundings in comfort and style.

The master bedroom suite is a private sanctuary, complete with a spacious bedroom, a lavish master bath with dual vanities, a soaking tub, a separate shower, and two walk-in closets. On the other side of the house, three additional bedrooms—each with walk-in closets and easy access to bathrooms—offer comfortable and private spaces for family and guests.

The home also boasts a flex room that can serve as a fifth bedroom, media room, or home gym, while a dedicated study provides a quiet space for work or contemplation. A practical laundry room and a three-car garage ensure that functionality accompanies the home’s elegant design.

With a total living area of 3,467 square feet, this floor plan is meticulously crafted to offer a luxurious living experience, making it the perfect blueprint for a home that’s as impressive as it is welcoming.

Mortgage Calculator

The calculated amount is an estimate, with the exact
loan terms determined on an individual basis.
Estimated calculated amount does not include taxes & insurance.
$ 200000
$ 150000
$ 750000
$
[downpayment]/[homeprice]*100
%
([homeprice]-[downpayment])*([interestrate]/100)/12/(1-Math.pow(1+([interestrate]/100)/12,-([loanterm]*12)))
$

Request More Information

Unlock "Build Now" Financing

Get 0% down + No Payment Until Completion
*With Approved Credit

$5,000

Save On Upgrades