Floor Plan

*Plan may show available options & upgrades.

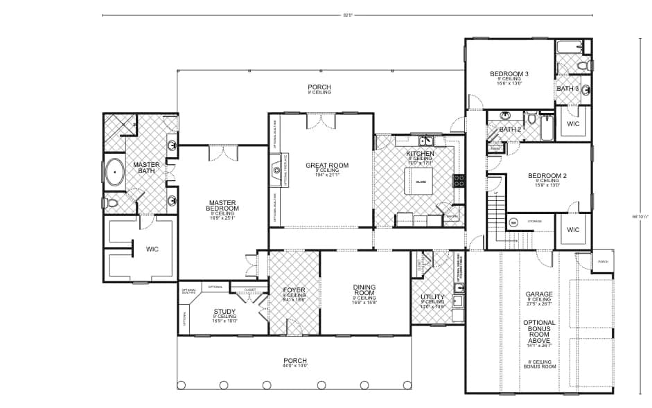
Azalea Floorplans

This floor plan unveils a harmonious blend of luxury and comfort, ideal for those seeking to create a custom home with an air of sophistication. The expansive front porch sets a welcoming tone, leading into a grand foyer that transitions into a voluminous great room with a 9-foot ceiling, creating an open and inviting atmosphere perfect for entertaining or unwinding.

Adjacent to the great room, the gourmet kitchen, complete with a walk-in pantry and an ample island, offers a convivial space for family and friends to gather. The dining room, conveniently positioned next to the kitchen, provides an elegant backdrop for formal meals.

Secluded for privacy, the master suite is a realm of tranquility, featuring a lofty ceiling, room for a sitting area, and a luxurious master bath with a dual-sink vanity, a separate shower, a soaking tub, and a capacious walk-in closet. The two additional bedrooms, each with their own walk-in closets and shared access to a full bathroom, provide comfortable living spaces for family or guests.

The study offers a versatile space that can serve as a home office or a quiet retreat, while the side porch presents an intimate outdoor living area. The utility room ensures household tasks are kept discreet and orderly.

For those desiring more space, this floor plan includes an optional bonus room above the garage, offering a flexible area that can be customized to fit any need—be it a home theater, gym, or additional family room.

Completing this home is a generous garage with extra storage space. With a total living area of 3,014 square feet, this floor plan is a canvas awaiting your personal touch to become the home of your dreams, offering a balance of grandeur and practicality that is rare to find.

Mortgage Calculator

The calculated amount is an estimate, with the exact
loan terms determined on an individual basis.
Estimated calculated amount does not include taxes & insurance.
$ 200000
$ 150000
$ 750000
$
[downpayment]/[homeprice]*100
%
([homeprice]-[downpayment])*([interestrate]/100)/12/(1-Math.pow(1+([interestrate]/100)/12,-([loanterm]*12)))
$

Request More Information

Unlock "Build Now" Financing

Get 0% down + No Payment Until Completion
*With Approved Credit

$5,000

Save On Upgrades