Floor Plan

*Plan may show available options & upgrades.

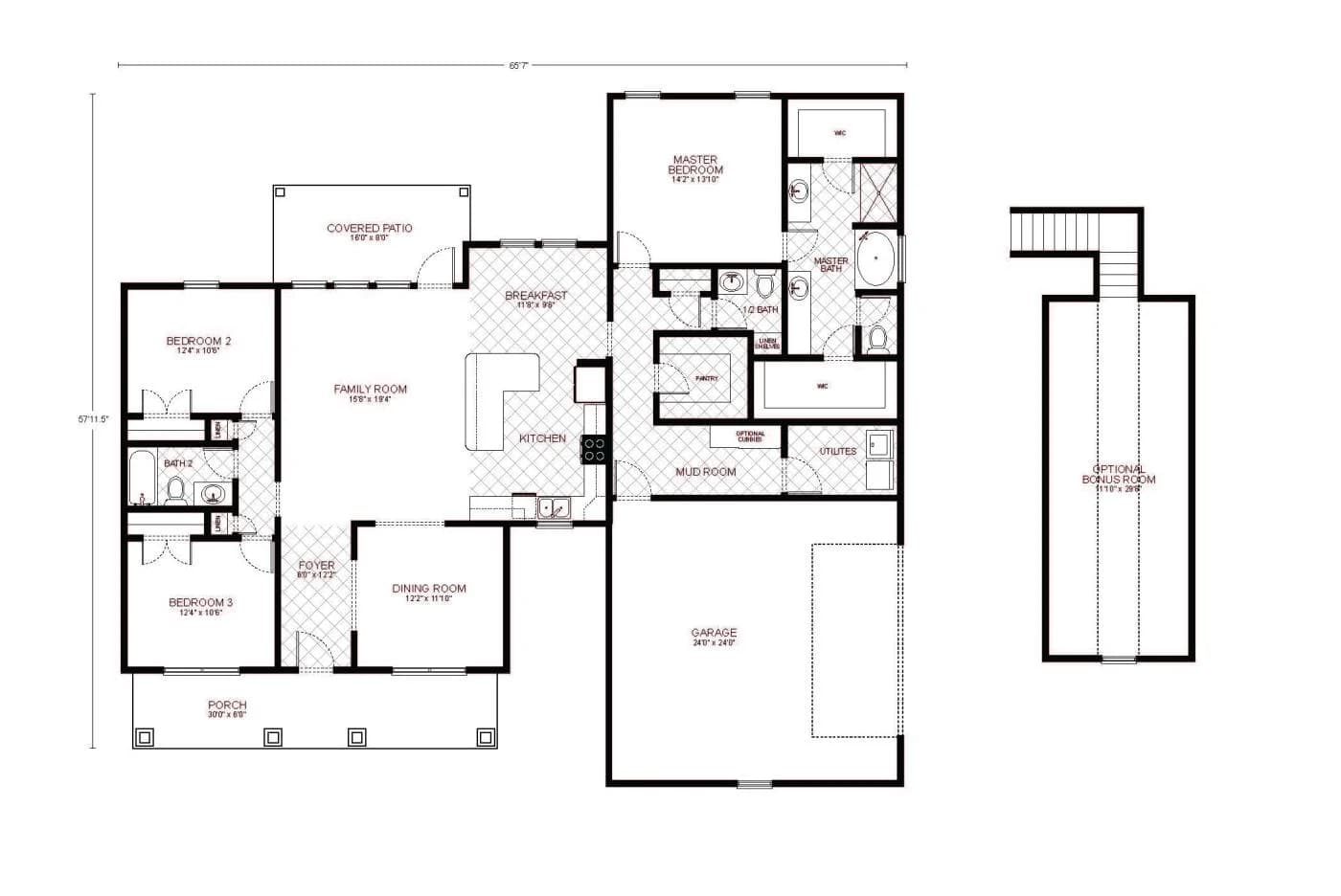
Canyon - Custom Home Floor Plan

Envision yourself in this beautifully laid out floor plan, designed with a perfect symphony of form and function for those looking to build a bespoke home. The stately front porch opens to an inviting foyer that warmly welcomes guests, flowing seamlessly into a sophisticated dining room ideal for hosting elegant dinners.

The heart of the home is the spacious family room, a central gathering space with ample room for relaxation and entertainment, effortlessly connected to the outdoor living area through a covered patio that extends your living space into nature. The adjacent kitchen is a chef’s dream with plenty of counter space, modern appliances, and a walk-in pantry, all while allowing engagement with family and friends in the breakfast nook for casual dining.

Retreat to the luxurious master bedroom, where comfort meets style, featuring a master bath with dual vanities, a large shower, a garden tub, and a sizable walk-in closet. The home offers two additional bedrooms, each with easy access to full bathrooms, ensuring privacy and convenience for all family members.

The design includes a functional mudroom and a separate utility room to keep your home organized and tidy. For those who require more space, an optional bonus room provides a versatile area that can be customized for a home theater, gym, or an additional family room, making it a true reflection of your lifestyle.

Boasting a total living area of 2,560 square feet, this floor plan provides a thoughtful balance between shared living spaces and private retreats. It’s an impeccable foundation for crafting your dream home, offering the versatility to accommodate a range of needs and preferences.

Mortgage Calculator

The calculated amount is an estimate, with the exact
loan terms determined on an individual basis.
Estimated calculated amount does not include taxes & insurance.
$ 200000
$ 150000
$ 750000
$
[downpayment]/[homeprice]*100
%
([homeprice]-[downpayment])*([interestrate]/100)/12/(1-Math.pow(1+([interestrate]/100)/12,-([loanterm]*12)))
$

Request More Information

Unlock "Build Now" Financing

Get 0% down + No Payment Until Completion
*With Approved Credit

$5,000

Save On Upgrades