Floor Plan

*Plan may show available options & upgrades.

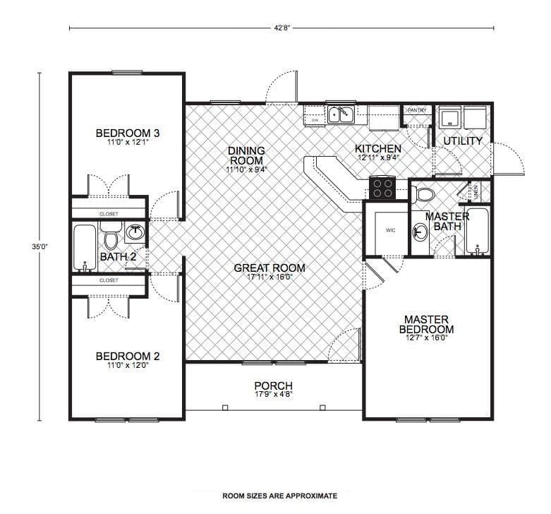
Woodcrest - Custom Home Floor Plan

The Woodcrest floor plan is an efficient and inviting design that provides a comfortable living space, ideal for modern families or couples. The plan details a welcoming home with a sensible distribution of space.

Featuring a sizable great room at the heart of the home, it offers a perfect setting for relaxation and family gatherings. The dining room is conveniently located adjacent to the kitchen, facilitating easy and enjoyable mealtime experiences. The kitchen is equipped with essential appliances and a practical layout, including a utility area for added convenience.

The master bedroom is designed as a restful retreat with its own en suite master bath, creating a private haven within the home. Additional bedrooms are provided, offering ample space for family, guests, or a home office, with a second full bathroom easily accessible to support these rooms.

This floor plan also includes a porch, contributing to the home’s charm and providing a pleasant outdoor area for relaxation and entertainment. The living area and room sizes are thoughtfully proportioned to maximize comfort and livability within the home.

Mortgage Calculator

The calculated amount is an estimate, with the exact
loan terms determined on an individual basis.
Estimated calculated amount does not include taxes & insurance.
$ 200000
$ 150000
$ 750000
$
[downpayment]/[homeprice]*100
%
([homeprice]-[downpayment])*([interestrate]/100)/12/(1-Math.pow(1+([interestrate]/100)/12,-([loanterm]*12)))
$

Request More Information

Unlock "Build Now" Financing

Get 0% down + No Payment Until Completion
*With Approved Credit

$5,000

Save On Upgrades