Floor Plan

*Plan may show available options & upgrades.

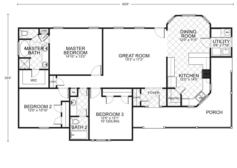
San Antonio - Custom Home Floor Plan

Introducing the San Antonio floor plan, an embodiment of modern living combined with comfort, designed for those looking to build a custom home with a warm, welcoming atmosphere. The plan boasts a spacious living area of 1563 sq. ft., with a total under-roof space of 1912 sq. ft., including a charming front porch.

As you enter through the foyer, you are greeted by a large great room with ample space for relaxation and family gatherings. The great room’s open layout ensures it is the heart of the home, with a layout conducive to both lively entertainment and peaceful evenings.

The kitchen, featuring modern amenities, is complemented by a convenient pantry and an adjacent dining room, making it an ideal space for cooking and enjoying meals. The utility room is strategically placed near the kitchen for efficiency and serves as a multipurpose space for laundry and storage.

The master suite is a haven of tranquility, offering a generous bedroom, a well-appointed master bath, and a walk-in closet. The thoughtful placement of the master suite provides a private escape from the main living areas.

Two additional bedrooms are perfectly sized for comfort, each with easy access to the second full bathroom, ensuring functionality and privacy for family members or guests.

Completing this layout, the expansive porch extends the living space outdoors, providing an inviting area to enjoy the surrounding landscape and entertain guests.

The San Antonio floor plan is not just a blueprint; it is the foundation for a home filled with comfort, functionality, and cherished memories for years to come.

Mortgage Calculator

The calculated amount is an estimate, with the exact
loan terms determined on an individual basis.
Estimated calculated amount does not include taxes & insurance.
$ 200000
$ 150000
$ 750000
$
[downpayment]/[homeprice]*100
%
([homeprice]-[downpayment])*([interestrate]/100)/12/(1-Math.pow(1+([interestrate]/100)/12,-([loanterm]*12)))
$

Request More Information

Unlock "Build Now" Financing

Get 0% down + No Payment Until Completion
*With Approved Credit

$5,000

Save On Upgrades