Floor Plan

*Plan may show available options & upgrades.

Seymour A - Custom Home Floor Plan
Gallery

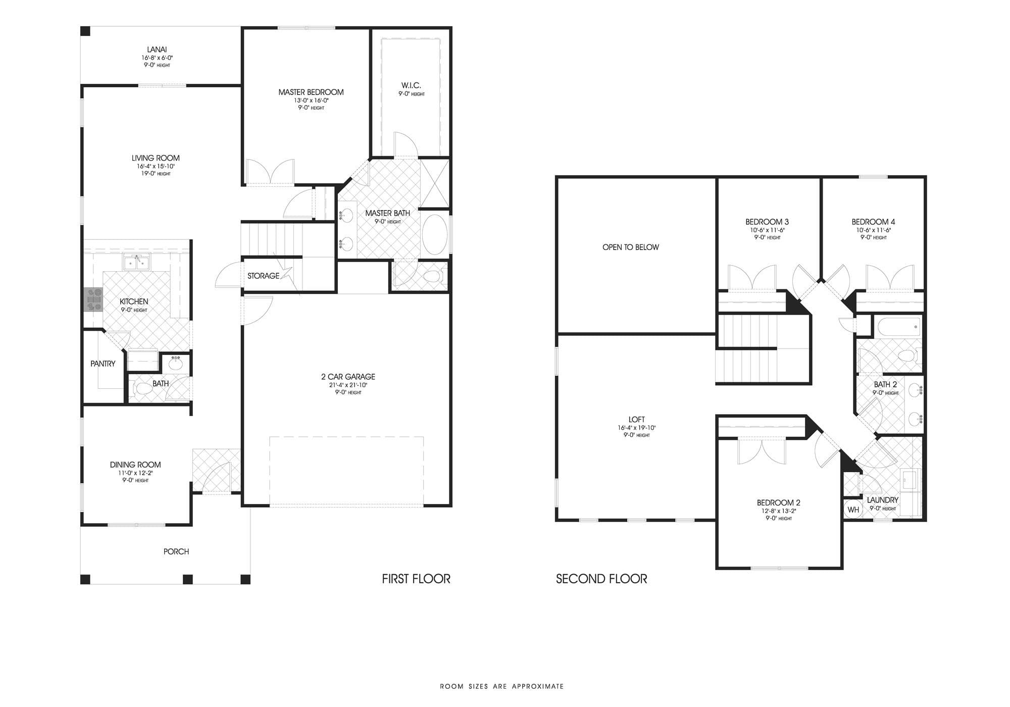
This Seymour-A floor plan represents a masterful combination of space and design, with a total living area of 2488 square feet, thoughtfully divided between two levels to maximize both privacy and communal living.

The first floor serves as the cornerstone of the home, featuring a sizable living room that sets the stage for relaxation and social engagement. The adjacent dining room, seamlessly connected to the kitchen, is perfect for both casual and formal dining experiences. The kitchen, complete with a pantry, is meticulously planned to optimize space and functionality, making cooking a pleasure. A full bath and additional storage round out the first-floor amenities.

The master suite, also located on the first floor, is a retreat unto itself, offering a spacious bedroom, a walk-in closet, and a master bath designed for comfort and serenity. The suite opens to a lanai, providing a private outdoor space to unwind.

As you ascend to the second floor, the layout includes three additional bedrooms, offering ample personal space for family or guests. A shared full bath ensures convenience and functionality. The loft, overlooking the living room, provides an open, flexible space for a family room, home office, or play area.

Completing this home is a practical two-car garage and substantial outdoor living spaces, including a porch and lanai, perfect for enjoying the outdoors and entertaining. With its intelligent design and comfortable living areas, the Seymour-A is an exceptional choice for those seeking a modern and spacious home that caters to both privacy and community.

Mortgage Calculator

The calculated amount is an estimate, with the exact
loan terms determined on an individual basis.
Estimated calculated amount does not include taxes & insurance.
$ 200000
$ 150000
$ 750000
$
[downpayment]/[homeprice]*100
%
([homeprice]-[downpayment])*([interestrate]/100)/12/(1-Math.pow(1+([interestrate]/100)/12,-([loanterm]*12)))
$

Request More Information

Unlock "Build Now" Financing

Get 0% down + No Payment Until Completion
*With Approved Credit

$5,000

Save On Upgrades